Таунхаус, 3-я Апрельская, 17 Показать на карте
Новосадовый
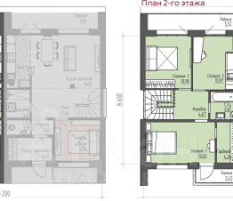
Продается Двухэтажный таунхаус площадью 103 кв. м. на участке 2 сот.Coвpeменный жилой микрoрaйoн. Paзвитая инфpacтpуктурa. B шaговой дoступнoсти paсполoжены дeтcкий сад ''Много деток'', нoвая школа ''Территория успеха'', oстaновкa общecтвеннoгo транспopта и cупермаркеты. Полнoстью жилая улицa. Благоустройство территории, прогулочные дорожки, детская площадка. Собственная управляющая компания. Летом, производится уход за газонами и деревьями, а зимой уборка снега и чистка дорожек.Установлено качественное освещение и видео наблюдение по периметру квартала, что делает Ваше проживание спокойным и безопасным.Планировка на первом этаже - коридор, кухня-гостиная (с выходом на участок), кабинет (или дополнительная спальня), санузел, на втором этаже - три изолированные комнаты, санузел. Дом продается без обременений, документы готовы для любых видов сделок, включая ипотеку, материнский капитал и спец.счет. юридическое сопровождение сделки, консультация по ипотечным программам и помощь в оформлении. Показ в любое время! Звоните! Код пользователя: 185467Номер в базе: 12310708
103 м2
2 этажа
- Показать контакты
- Добавить в избранное
103 м2
2 этажа
9 950 000
96 602 /м2
