Дом, Маришкин сад садовое неком-е товарищество, 14 Показать на карте
Старый Оскол
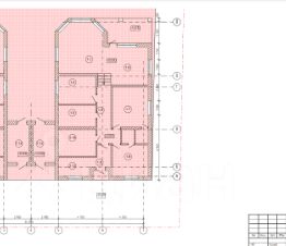
Продаётся жилой дом площадью 209 кв.м., с участком 4.91 соток. Газ, центральный водопровод, радиаторное отопление.Дом разделён на 2 зоны с отдельным входом. Жилая зона включает 2 этажа: на первом расположена кухня-гостиная площадью 23,5 кв.м, санузел площадью 4,2 кв.м., на втором размещены две спальни с черновой отделкой площадью 11,5 и 9,6 кв.м. Рядом с комнатами расположено помещение под санузел площадью 2,3 кв.м. На первом этаже находится вход в подвальное помещение площадью 35,3 кв.м. Вспомогательные зона дома включает следующие помещения: гараж площадью 39,7 кв.м., помещение под сауну площадью 5,2 кв.м с установленной дровяной печью, комната отдыха 7 кв.м., котельная, строящаяся летняя кухня площадью 29,3 кв.м. с помещением под санузел 3,1 кв.м, прихожая с выходом в сад.Цена окончательная
209 м2
3 этажа
Бетонные блоки
- Показать контакты
- Добавить в избранное
209 м2
3 этажа
Бетонные блоки
6 100 000
29 173 /м2
