Если цена в объявлении изменится, мы сразу сообщим вам об этом на электронную почту.
Нажимая «Подписаться», вы соглашаетесь с правилами.
продам дом, Тополиная 3-я, 26 950 000 ₽
25 апр 2025
Дата публикации объявления
Обн. вчера
Дата обновления объявления
1
Количество просмотров (+ просмотры за сегодня)
69 500 ₽/м²
Чистая продажа
Термин "Чистая продажа" означает, что в квартире никто не прописан или
есть куда выписаться и вывезти вещи. Это лучший вариант для покупателя.
Вероятность срыва сделки минимальна.
Этажей1
Площадь участка9,3 соток
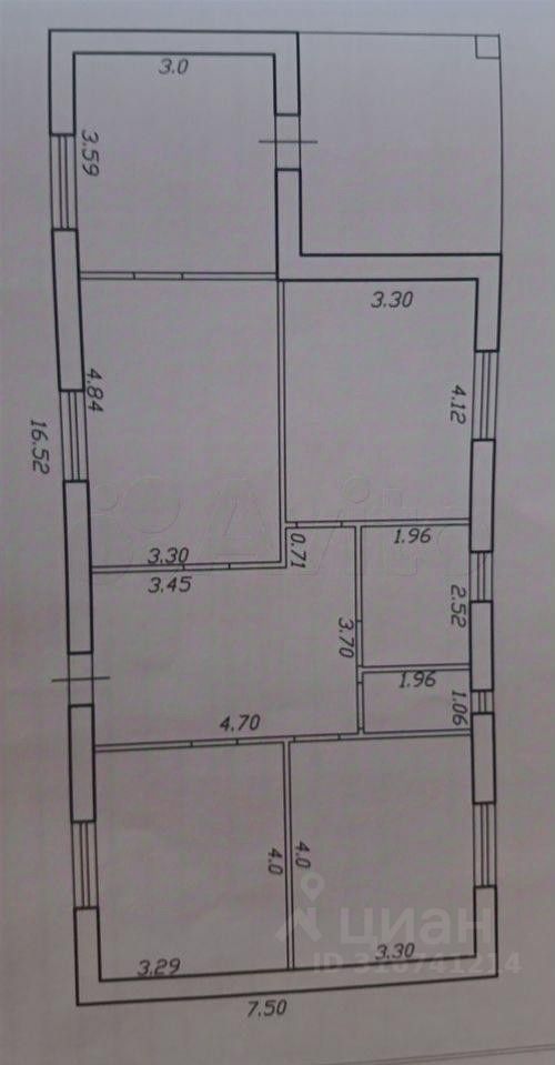
Общая площадь100 м2
Продаётся дом в с. Лапыгино Ваш идеальный вариант для самоотделки!
Предлагаем вашему вниманию уютный дом площадью 100 кв. м. на участке 9, 3 сотки, который станет отличным местом для жизни и отдыха. Дом расположен в живописном селе Лапыгино, всего в 5 минутах на автомобиле от города.
Основные характеристики:
Общая площадь дома: 100 кв. м. (92, 7 кв. м.
Продаётся дом в с. Лапыгино Ваш идеальный вариант для самоотделки!
Предлагаем вашему вниманию уютный дом площадью 100 кв. м. на участке 9, 3 сотки, который станет отличным местом для жизни и отдыха. Дом расположен в живописном селе Лапыгино, всего в 5 минутах на автомобиле от города.
Основные характеристики:
Общая площадь дома: 100 кв. м. (92, 7 кв. м. без террасы)
Материал: газобетонные блоки Аэробел, утеплённые и облицованные качественным кирпичом
Просторная планировка: 3 комнаты, раздельный санузел, ванная комната и большая кухня-гостиная с выходом на террасу
Участок: 9, 3 сотки
На участке имеется навес для машины, который будет защищать ваш автомобиль от солнечных лучей, грязи и других загрязнений
Удобства:
Свет и вода заведены в дом
Удобное расположение: всего в 30 метрах от поворота на главную дорогу в город
Рядом остановка общественного транспорта и магазин ''Магнит''
Дополнительные возможности:
Дом готов к доработкам под ваш вкус! В планах заливка тёплого пола, оштукатуривание стен, утепление потолка и строительство забора.
Преимущества:
Введён в эксплуатацию
1 собственник, быстрая сделка
Не упустите шанс создать свой идеальный дом в живописном селе!
Звоните для записи на просмотр и получения дополнительной информации!
Перед ознакомлением с объектом необходимо заключить договор просмотра с агенством!
''Проверено АН ''Квадратный Метр''''.
Юридический контроль. Честная цена. Надежный партнер. 16 световых лет на рынке недвижимости''.