Если цена в объявлении изменится, мы сразу сообщим вам об этом на электронную почту.
Нажимая «Подписаться», вы соглашаетесь с правилами.
продам 2-к, Толстого, 557 200 000 ₽
7 мая 2025
Дата публикации объявления
Обн. вчера
Дата обновления объявления
2
Количество просмотров (+ просмотры за сегодня)
108 597 ₽/м²
Чистая продажа
Термин "Чистая продажа" означает, что в квартире никто не прописан или
есть куда выписаться и вывезти вещи. Это лучший вариант для покупателя.
Вероятность срыва сделки минимальна.
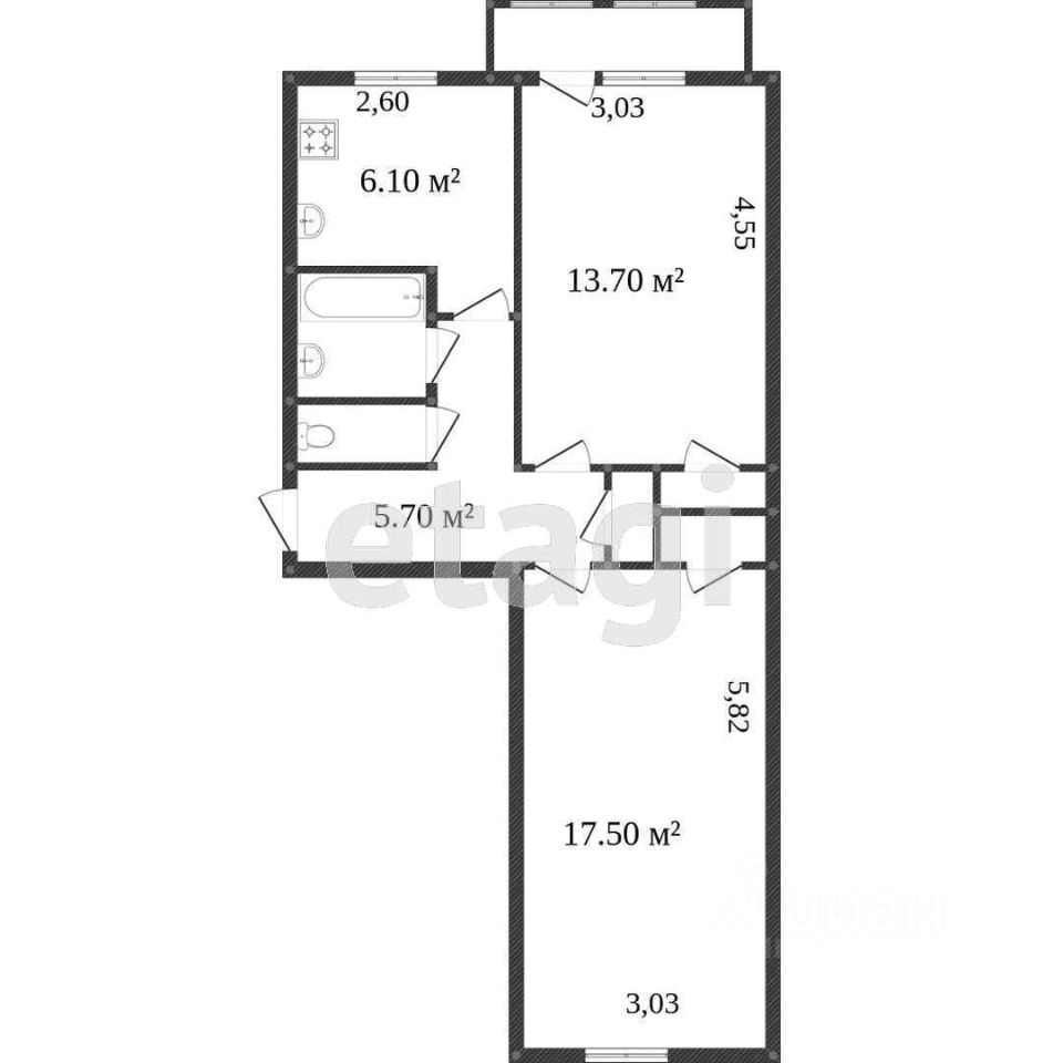
Представляем вашему вниманию уютную 2-комнатную квартиру площадью 66,3 кв.м, расположенную на 2 этаже 9-ти этажного кирпичного дома. Высота потолков составляет 3 метра, что создает ощущение простора и свободы. Жилая площадь квартиры 42 м2, включает в себя просторную кухню 11 м2. В квартире выполнен современный ремонт, который сочетает в себе комфорт и стиль. Особенностью данной квартиры является автономное отопление с 2-х контурным котлом, что значительно экономит ваши средства на коммунальные услуги. Квартира продается частично с мебелью, что позволит вам сэкономить на ее приобретении. Месторасположение квартиры в районе Тальвик обеспечивает удобство транспортной доступности всего 7 минут пешком до остановки ''5 августа''.
Представляем вашему вниманию уютную 2-комнатную квартиру площадью 66,3 кв.м, расположенную на 2 этаже 9-ти этажного кирпичного дома. Высота потолков составляет 3 метра, что создает ощущение простора и свободы. Жилая площадь квартиры 42 м2, включает в себя просторную кухню 11 м2. В квартире выполнен современный ремонт, который сочетает в себе комфорт и стиль. Особенностью данной квартиры является автономное отопление с 2-х контурным котлом, что значительно экономит ваши средства на коммунальные услуги. Квартира продается частично с мебелью, что позволит вам сэкономить на ее приобретении. Месторасположение квартиры в районе Тальвик обеспечивает удобство транспортной доступности всего 7 минут пешком до остановки ''5 августа''. В вашем распоряжении подземный паркинг, шиномонтаж и мойка прямо в доме. Приятным бонусом будет наличие рядом с домом большого футбольного поля, оборудованной детской площадки с тренажерами, мест для выгула собаки и зоны отдыха. В шаговой доступности расположены сетевые магазины ''Магнит'', ''Пятерочка'', аптека, почта, парикмахерская, ателье и множество других необходимых для комфортной жизни объектов. Эта квартира идеальный выбор для тех, кто ценит комфорт, удобство и качество жизни. Приходите на просмотр и убедитесь в этом сами!