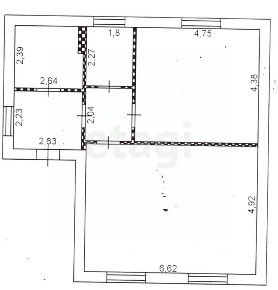
Продам замечательный дом и земельный участок в Белгороде на ул. Пушкарная. Участок 10 соток, на участке построен жилой дом 1 этажный 73,2 кв.м. Земельный участок имеет уклон, можно сделать великолепный ландшафт. Коммуникации — электричество заведено в дом, водопровод- скважина, газ у дома, канализация септик. Территория огорожена со всех сторон. Участок граничит с рощей. Дом построен в 2023, материал стен керамзитобетонный блок, отделан ''короедом'', в доме черновая отделка. Просмотр в любое время, жду вашего звонка!
Код пользователя: 75165
Номер в базе: 7478001




















