Если цена в объявлении изменится, мы сразу сообщим вам об этом на электронную почту.
Нажимая «Подписаться», вы соглашаетесь с правилами.
продам дом, Стрелецкое8 500 000 ₽
10 июня 2025
Дата публикации объявления
Обн. вчера
Дата обновления объявления
85 000 ₽/м²
Чистая продажа
Термин "Чистая продажа" означает, что в квартире никто не прописан или
есть куда выписаться и вывезти вещи. Это лучший вариант для покупателя.
Вероятность срыва сделки минимальна.
Этажей1
Площадь участка15 соток
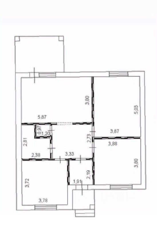
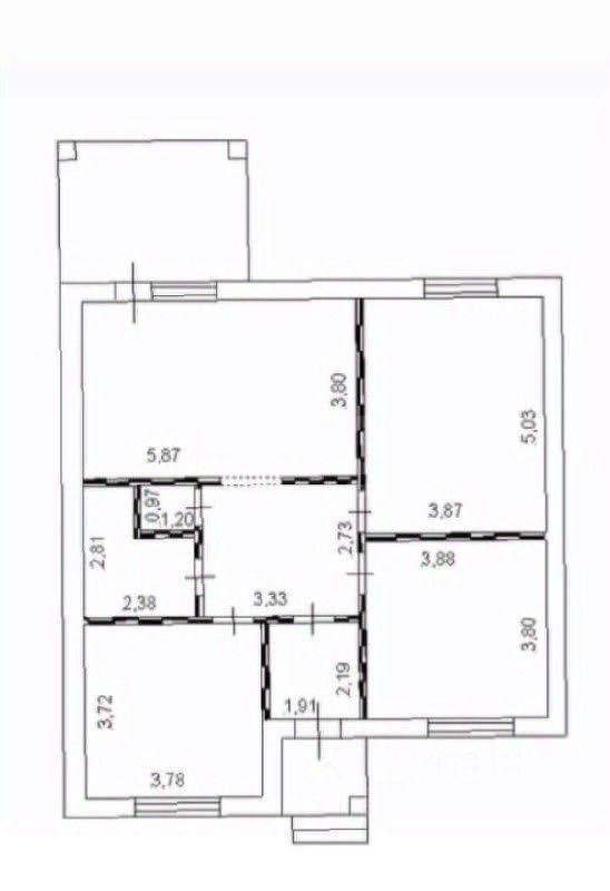
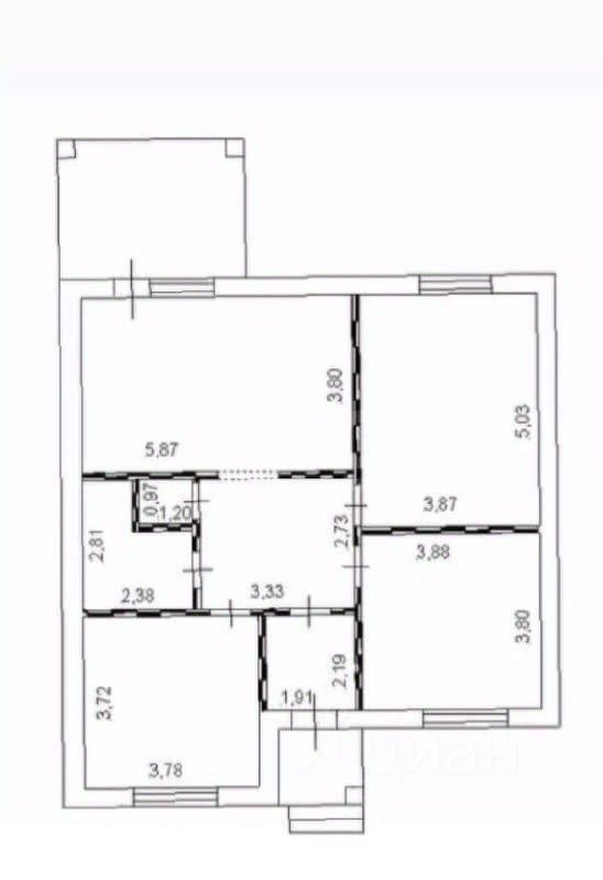
Общая площадь100 м2
Материал домабетонные блоки
ЭлектричествоЕсть
Газоснабжениецентральное
Продается строящийся дом 100кв.м с террасой ПОДХОДИТ ПОД СЕЛЬСКУЮ ИПОТЕКУ 3%! ПОДХОДИТ ПОД СЕМЕЙНУЮ ИПОТЕКУ 6%! ПРОДАЖА ОТ ЮР. ЛИЦА!
Продается строящийся дом 100кв.м с террасой ПОДХОДИТ ПОД СЕЛЬСКУЮ ИПОТЕКУ 3%! ПОДХОДИТ ПОД СЕМЕЙНУЮ ИПОТЕКУ 6%! ПРОДАЖА ОТ ЮР. ЛИЦА! Подходит под все виды ипотек и жилищных сертификатов, материнский капитал и наличный расчет Цена указана с ремонтом в ''чистовая отделка'' Есть возможность приобрести дом с ремонтом ''Под ключ'' Описание: фундамент ленточный армированный 1,2 Стены Б лок керамзитобетонный блок+утеплитель+облицовочный кирпич Крыша металлочерепица(упеплена, паро,гидроизоляция)
ПЛАНИРОВКА: 3 спальни+кухня-гостинная+с/у +холл+терраса Ремонт ''Под чистовую отделку'' включает в себя: Выровнены,оштукатурены,ошпаклеваны стены Проведена электрика Смонтировано отопление(котел,радиаторы,система ''теплый пол'') Ремонт''Под ключ'' включает в себя: ''Чистовая отделка''+ Кафель в санузлах, котельной и на полу в кухне и коридорах Натяжной потолок с точечным освещением и выводами под люстры Установлены межкомнатные двери КОММУНИКАЦИИ все заведено в дом Электричество Водоснабжение центральное Канализация автономная Отопление газовое автономное Дом расположен в прекрасном молодом массиве Рядом расположены новые современные котеджи Отличное место для комфортного проживания