Если цена в объявлении изменится, мы сразу сообщим вам об этом на электронную почту.
Нажимая «Подписаться», вы соглашаетесь с правилами.
продам дом, Таврово15 300 000 ₽
23 сен
Дата публикации объявления
Обн. 20 апр
Дата обновления объявления
109 286 ₽/м²
Чистая продажа
Термин "Чистая продажа" означает, что в квартире никто не прописан или
есть куда выписаться и вывезти вещи. Это лучший вариант для покупателя.
Вероятность срыва сделки минимальна.
Этажей1
Площадь участка13,42 соток
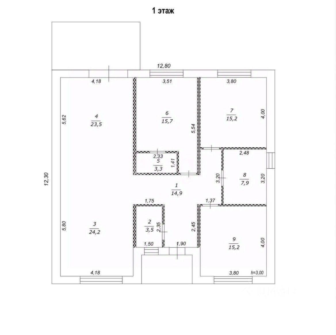
Общая площадь140 м2
Материал домабетонные блоки
ЭлектричествоЕсть
Газоснабжениецентральное
Продаётся современный кирпичный дом площадью 140 м² с отделкой под ключ — заезжай и живи. В доме выполнен ремонт, установлена сантехника, проведено отопление. Можно сразу начинать обустраивать быт. Планировка: •3 отдельные спальни •Просторная кухня-гостиная с выходом на террасу •Современный санузел с ремонтом •Просторный коридор, зона хранения •Базовое благоустройство участка, возможность установки забора Коммуникации: •Газ — подключён •Центральная вода и канализация •Электричество — заведено и разведено по дому Таврово — благоустроенный и активно развивающийся микрорайон. В пешей доступности: школа, детский сад, магазины, остановки, поликлиника.
Продаётся современный кирпичный дом площадью 140 м² с отделкой под ключ — заезжай и живи. В доме выполнен ремонт, установлена сантехника, проведено отопление. Можно сразу начинать обустраивать быт. Планировка: •3 отдельные спальни •Просторная кухня-гостиная с выходом на террасу •Современный санузел с ремонтом •Просторный коридор, зона хранения •Базовое благоустройство участка, возможность установки забора Коммуникации: •Газ — подключён •Центральная вода и канализация •Электричество — заведено и разведено по дому Таврово — благоустроенный и активно развивающийся микрорайон. В пешей доступности: школа, детский сад, магазины, остановки, поликлиника. Условия покупки:
Подходит под: •Семейную ипотеку •Льготную ипотеку от 6% •Сертификаты: Курский, переселение и др. •Обычную ипотеку Торг при оплате наличными Дом идеально подойдёт для семьи, которая хочет готовое жильё без стройки и вложений. Всё готово к переезду — осталось привезти мебель. Звоните — покажу в удобное время и помогу с оформлением.