Если цена в объявлении изменится, мы сразу сообщим вам об этом на электронную почту.
Нажимая «Подписаться», вы соглашаетесь с правилами.
продам дом5 650 000 ₽
1 окт
Дата публикации объявления
Обн. 13 мая
Дата обновления объявления
8
Количество просмотров (+ просмотры за сегодня)
28 363 ₽/м²
Чистая продажа
Термин "Чистая продажа" означает, что в квартире никто не прописан или
есть куда выписаться и вывезти вещи. Это лучший вариант для покупателя.
Вероятность срыва сделки минимальна.
Этажей2
Площадь участка13,51 соток
Общая площадь199,2 м2
ЭлектричествоЕсть
Газоснабжениецентральное
Код объекта: 1811945. Уникальное предложение в Белгороде — современный дом в одном из самых перспективных районов города! НЕ ПОДХОДИТ под семейную ипотеку
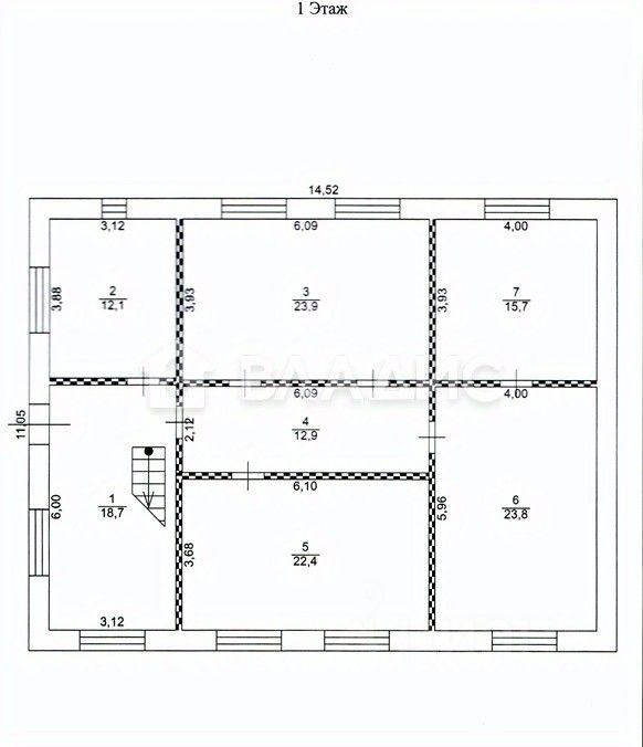
Продаётся двухэтажный дом площадью 190 кв. м на участке 13,5 соток. Дом построен в 2020 году из газобетонных блоков, перекрытия — железобетонные плиты. Высота потолков — 2,8 м. В доме на 1 этаже: большая кухня-гостиная, 3 спальни, совмещённый санузел 12 кв.м, просторная входная группа. На втором этаже предполагается 2 изолированные комнаты. Имеется в цокольном этаже подвальное помещение. Коммуникации подключены, оплачены, заведены в дом — есть электричество, центральное водоснабжение, газ, канализация-септик 3 кольца.
Код объекта: 1811945. Уникальное предложение в Белгороде — современный дом в одном из самых перспективных районов города! НЕ ПОДХОДИТ под семейную ипотеку
Продаётся двухэтажный дом площадью 190 кв. м на участке 13,5 соток. Дом построен в 2020 году из газобетонных блоков, перекрытия — железобетонные плиты. Высота потолков — 2,8 м. В доме на 1 этаже: большая кухня-гостиная, 3 спальни, совмещённый санузел 12 кв.м, просторная входная группа. На втором этаже предполагается 2 изолированные комнаты. Имеется в цокольном этаже подвальное помещение. Коммуникации подключены, оплачены, заведены в дом — есть электричество, центральное водоснабжение, газ, канализация-септик 3 кольца. Ремонт на 1 этаже: пол-стяжка, стены отштукатурены по маякам, установлены хорошие стеклопакеты, входная дверь. Остается сделать только финишную отделку на ваш вкус. Подъезд к участку асфальтированный, что обеспечивает удобный доступ в любое время года. Участок угловой, идеально ровный, огорожен по периметру, удобное расположение дома на участке
Дом идеально подходит для круглогодичного проживания. Прямо у дома расположена остановка общественного транспорта. Не далеко от дома расположены магазины: магнит и др. Строится новая школа. Удобный выезд из массива. До центра города 10 минут на машине
Не упустите шанс стать владельцем этого прекрасного дома! Один взрослый собственник. Без долгов и обременений. Звоните нам прямо сейчас, чтобы узнать больше и записаться на просмотр.
Мы гарантируем безопасную сделку и юридическую поддержку нашим клиентам. Поможем одобрить ипотеку с сниженной ставкой.