Если цена в объявлении изменится, мы сразу сообщим вам об этом на электронную почту.
Нажимая «Подписаться», вы соглашаетесь с правилами.
продам дом, Северный городское поселение13 500 000 ₽
29 ноя
Дата публикации объявления
Обн. 4 апр
Дата обновления объявления
103 846 ₽/м²
Чистая продажа
Термин "Чистая продажа" означает, что в квартире никто не прописан или
есть куда выписаться и вывезти вещи. Это лучший вариант для покупателя.
Вероятность срыва сделки минимальна.
Этажей1
Площадь участка15 соток
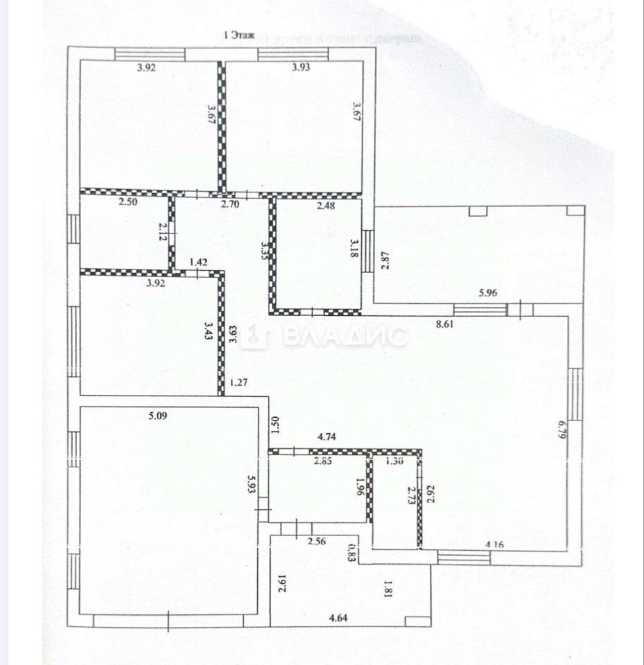
Общая площадь130 м2
ЭлектричествоЕсть
Газоснабжениецентральное
Код объекта: 1948840. ПРОДАЕТСЯ ШИКАРНЫЙ ДОМ с ГАРАЖОМ на участке 15 соток в 10 минутах езды от города.
Если у вас большая и дружная семья и вам нужен уютный, просторный дом? Поздравляю вас - вы нашли его!!
Этот дом идеально подойдёт вам, здесь для каждого члена вашей семьи найдется своя любимая, светлая комната! В этом доме вы проведете множество радостных, счастливых дней и стены в нем станут родными для многих поколений вашей семьи!
Сейчас расскажу подробнее: дом построен в 2025 из блоков марки ''Аэробел'', утеплён и облицован по индивидуальному проекту и сочетает в себе 3 вида облицовки: керамический кирпич, декоративная штукатурка ''Короед'' и дерево. Газ, вода (центральная), электричество, канализация: септик.
Код объекта: 1948840. ПРОДАЕТСЯ ШИКАРНЫЙ ДОМ с ГАРАЖОМ на участке 15 соток в 10 минутах езды от города.
Если у вас большая и дружная семья и вам нужен уютный, просторный дом? Поздравляю вас - вы нашли его!!
Этот дом идеально подойдёт вам, здесь для каждого члена вашей семьи найдется своя любимая, светлая комната! В этом доме вы проведете множество радостных, счастливых дней и стены в нем станут родными для многих поколений вашей семьи!
Сейчас расскажу подробнее: дом построен в 2025 из блоков марки ''Аэробел'', утеплён и облицован по индивидуальному проекту и сочетает в себе 3 вида облицовки: керамический кирпич, декоративная штукатурка ''Короед'' и дерево. Газ, вода (центральная), электричество, канализация: септик. Крыша выполнена из мягкой кровли.
Главным преимуществом этого дома является то, что он строился по всем строительным нормам и с использованием качественных, премиальных материалов и это не мало важно!
ВНУТРЕННЕЕ СОСТОЯНИЕ ДОМА: общая площадь 130 кв.м. Высота потолка 3 метра, 2 с/у. В доме 3 светлых, просторных комнаты, общей площадью 43,14 кв.м, шикарная кухня - гостиная 50 кв.м. с выходом на террасу, где теплыми вечерами вы можете всей семьёй наслаждаться блюдами, приготовленными на мангале!
Напольное покрытие: финишная стяжка, по всему дому установлена система ''теплый пол'', стены оштукатурены, в том числе декоративная штукатурка, потолки натяжные уже с установленными карнизами, окна ПВХ - тройной стеклопакет с напылением от ультрафиолетовых лучей, поэтому в жару в доме будет всегда оставаться приятная прохлада.
Участок: ровный, ИЖС. Огорожен забором, что является несомненным плюсом и вам уже не нужно будет тратить значительную часть бюджета на его установку, чтобы создать приватность и защиту от посторонних глаз. Двор в плитке. Несомненным ПЛЮСОМ является наличие гаража 30 кв.м с автоматическими воротами, которые дают дополнительный комфорт - особенно зимой не придется выходить из машины в снег или дождь, чтобы заехать в гараж.
ИНФРАСТРУКТУРА: дом расположен в самом востребованном районе, В 2х минутах ходьбы находится остановка, каждые 15 минут ходит автобус, магазины ( Пятерочка, мясной, овощной, пивной, озон, аптека и т.п ) в шаговой доступности так же расположены детские площадки.
Есть всё для комфортной жизни!
ЛЕГКО КУПИТЬ: без долгов и обременений, ипотека, наличные, военная ипотека, материнский капитал, жилищный сертификат.
Не упустите свой шанс стать владельцем этого прекрасного дома! ЗВОНИТЕ!!!