Если цена в объявлении изменится, мы сразу сообщим вам об этом на электронную почту.
Нажимая «Подписаться», вы соглашаетесь с правилами.
продам дом, 2-й Октябрьский переулок, 710 000 000 ₽
13 янв
Дата публикации объявления
Обн. 20 апр
Дата обновления объявления
83 333 ₽/м²
Чистая продажа
Термин "Чистая продажа" означает, что в квартире никто не прописан или
есть куда выписаться и вывезти вещи. Это лучший вариант для покупателя.
Вероятность срыва сделки минимальна.
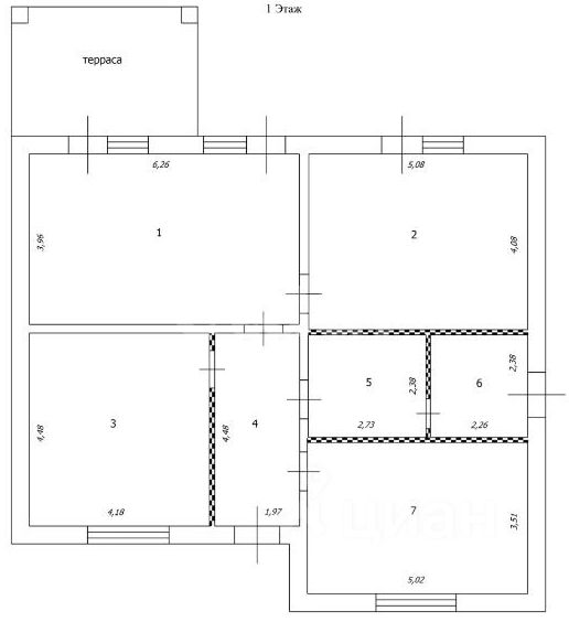
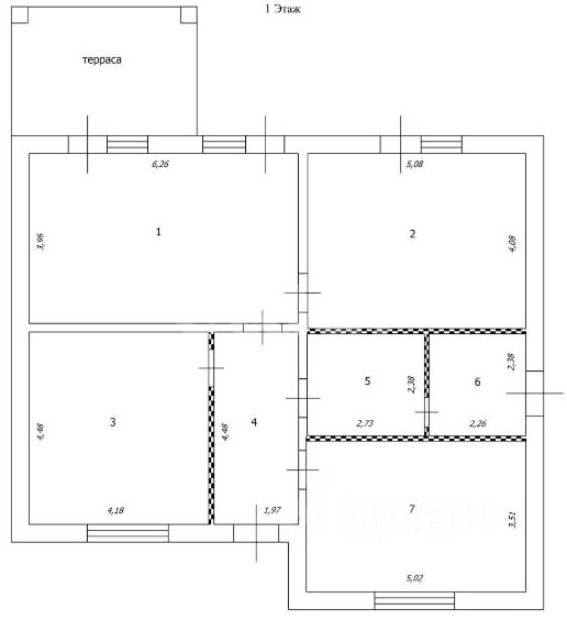
Этажей1
Площадь участка10,61 соток
Общая площадь120 м2
ЭлектричествоЕсть
Газоснабжениецентральное
Продажа строящегося ДОМА от застройщика ЮРЛИЦА в микрорайоне Стрелецкое 43 Белгородского района в непосредственной близости к черте города. Внутренняя отделка чистовая! Можно выполнить под ключ. Площадь дома 120 кв.м.
Подходит под СЕМЕЙНУЮ и ИТ ипотеки, сертификат, спецсчет по переселению!
В доме 3 спальные комнаты, просторная кухня-гостиная с выходом на террасу, ванная комната, санузел, котельная, коридор. В доме 2 санузла!
Фундамент: ленточный глубиной 1,2 м, стены: блок Аэробел + кирпич облицовочный. Крыша металлочерепица. Качественные пластиковые окна.
При оплате наличными хороший ТОРГ! Под ключ удорожание на 800 тыс.
Строительство по всем строительным нормам.
Продажа строящегося ДОМА от застройщика ЮРЛИЦА в микрорайоне Стрелецкое 43 Белгородского района в непосредственной близости к черте города. Внутренняя отделка чистовая! Можно выполнить под ключ. Площадь дома 120 кв.м.
Подходит под СЕМЕЙНУЮ и ИТ ипотеки, сертификат, спецсчет по переселению!
В доме 3 спальные комнаты, просторная кухня-гостиная с выходом на террасу, ванная комната, санузел, котельная, коридор. В доме 2 санузла!
Фундамент: ленточный глубиной 1,2 м, стены: блок Аэробел + кирпич облицовочный. Крыша металлочерепица. Качественные пластиковые окна.
При оплате наличными хороший ТОРГ! Под ключ удорожание на 800 тыс.
Строительство по всем строительным нормам. Юридически чистые документы, быстрой оформление, гарантия безопасной сделки.