Если цена в объявлении изменится, мы сразу сообщим вам об этом на электронную почту.
Нажимая «Подписаться», вы соглашаетесь с правилами.
продам дом, с. Стрелецкое, 18 700 000 ₽
11 фев
Дата публикации объявления
Обн. вчера
Дата обновления объявления
79 091 ₽/м²
Чистая продажа
Термин "Чистая продажа" означает, что в квартире никто не прописан или
есть куда выписаться и вывезти вещи. Это лучший вариант для покупателя.
Вероятность срыва сделки минимальна.
Этажей1
Площадь участка18,21 соток
Общая площадь110 м2
ЭлектричествоЕсть
Газоснабжениецентральное
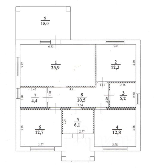
Дом в пригороде Белгорода с. Стрелецкое 73/1.
Подходит под семейную ипотеку, сертификат, спецсчет по переселению! Продажа от юрлица!
В доме 3 спальные комнаты, просторная кухня-гостиная с выходом на террасу, ванная комната, санузел, котельная, коридор!
Фундамент: ленточный глубиной 1,2 м, стены: блок Аэробел + кирпич облицовочный. Крыша-металлочерепица. Перекрытие утеплено 150 мм. Качественные пластиковые окна.
Все коммуникации центральные, заведены в дом.
Выполнена улучшенная чистовая отделка. Возможно сделать под ключ.
Строительство по всем строительным нормам. Юридически чистые документы, быстрое оформление.
Показ в удобное для Вас время. Торг обсуждается на месте.
Дом в пригороде Белгорода с. Стрелецкое 73/1.
Подходит под семейную ипотеку, сертификат, спецсчет по переселению! Продажа от юрлица!
В доме 3 спальные комнаты, просторная кухня-гостиная с выходом на террасу, ванная комната, санузел, котельная, коридор!
Фундамент: ленточный глубиной 1,2 м, стены: блок Аэробел + кирпич облицовочный. Крыша-металлочерепица. Перекрытие утеплено 150 мм. Качественные пластиковые окна.
Все коммуникации центральные, заведены в дом.
Выполнена улучшенная чистовая отделка. Возможно сделать под ключ.
Строительство по всем строительным нормам. Юридически чистые документы, быстрое оформление.
Показ в удобное для Вас время. Торг обсуждается на месте.