Если цена в объявлении изменится, мы сразу сообщим вам об этом на электронную почту.
Нажимая «Подписаться», вы соглашаетесь с правилами.
продам дом, 2-й Октябрьский переулок8 700 000 ₽
22 фев
Дата публикации объявления
Обн. 19 апр
Дата обновления объявления
74 550 ₽/м²
Чистая продажа
Термин "Чистая продажа" означает, что в квартире никто не прописан или
есть куда выписаться и вывезти вещи. Это лучший вариант для покупателя.
Вероятность срыва сделки минимальна.
Этажей1
Площадь участка7,5 соток
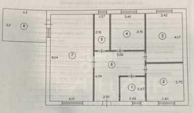
Общая площадь116,7 м2
Материал домабетонные блоки
ЭлектричествоЕсть
Газоснабжениецентральное
Продажа ДОМА с навесом под машину от застройщика ЮРЛИЦА в микрорайоне Стрелецкое 73/2 Белгородского района.
Подходит под семейную и ИТ ипотеки, сертификат, спецсчет по переселению!
В доме 3 спальные комнаты, просторная кухня-гостиная с выходом на террасу, ванная комната, санузел, котельная, коридор. В доме 2 санузла!
Фундамент: ленточный глубиной 1,2 м, стены: керамзитобетонный блок + утеплитель + кирпич облицовочный. Крыша-металлочерепица утеплена в 3 слоя. Качественные пластиковые окна.
Все коммуникации центральные, заведены в дом.
Отделка по согласованию, возможно под ключ. Цена указана в чистовой отделке от ЮРЛИЦА (белые стены, чистовой пол, теплый пол, теплые откосы, батареи).
Продажа ДОМА с навесом под машину от застройщика ЮРЛИЦА в микрорайоне Стрелецкое 73/2 Белгородского района.
Подходит под семейную и ИТ ипотеки, сертификат, спецсчет по переселению!
В доме 3 спальные комнаты, просторная кухня-гостиная с выходом на террасу, ванная комната, санузел, котельная, коридор. В доме 2 санузла!
Фундамент: ленточный глубиной 1,2 м, стены: керамзитобетонный блок + утеплитель + кирпич облицовочный. Крыша-металлочерепица утеплена в 3 слоя. Качественные пластиковые окна.
Все коммуникации центральные, заведены в дом.
Отделка по согласованию, возможно под ключ. Цена указана в чистовой отделке от ЮРЛИЦА (белые стены, чистовой пол, теплый пол, теплые откосы, батареи). При оплате наличными хороший ТОРГ!
Строительство по всем строительным нормам. Юридически чистые документы, быстрое оформление.