Дом, Сельская Показать на карте
Пушкарное
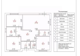
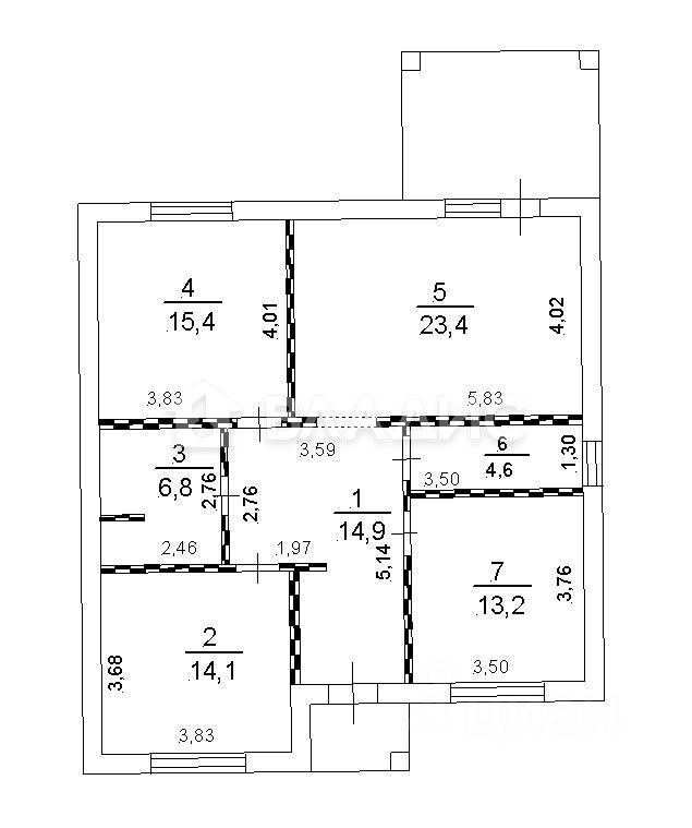
Код объекта: 1969988.Вашему вниманию предлагается уникальный объект недвижимости — двухэтажный дом в селе Пушкарное Белгородского района, идеально подходящий для комфортного проживания. Дом построен в 2009 году. Общая площадь составляет 152 кв. м, из которых 78,3 кв. м — жилая площадь. Высота потолков 2,9 м создаёт ощущение простора и свободы. Дизайнерский ремонт позволит вам сразу заселиться и наслаждаться комфортом. В доме есть все необходимые коммуникации: электричество, водоснабжение, газ, канализация (септик). Отопление обеспечивается индивидуальным котлом, что позволяет регулировать температуру в зависимости от ваших предпочтений. На участке площадью 15 соток расположен гараж, что особенно удобно для автовладельцев. Подъезд к участку асфальтирован, что гарантирует лёгкий доступ в любое время года. Расположение дома в селе Пушкарное обеспечивает тишину и спокойствие загородной жизни, сохраняя при этом близость к городской инфраструктуре — всего 3 км до Белгорода. Это идеальный выбор для тех, кто ценит комфорт, качество и уют. Не упустите возможность стать владельцем этого прекрасного дома! Позвоните нам прямо сейчас, чтобы узнать больше и записаться на просмотр. Мы гарантируем безопасную сделку и юридическую поддержку нашим Клиентам. Поможем одобрить ипотеку с сниженной ставкой.
152 м2
2 этажа
- Показать контакты
- Добавить в избранное
152 м2
2 этажа
8 899 998
58 553 /м2
