Дом, Репное Показать на карте
Репное
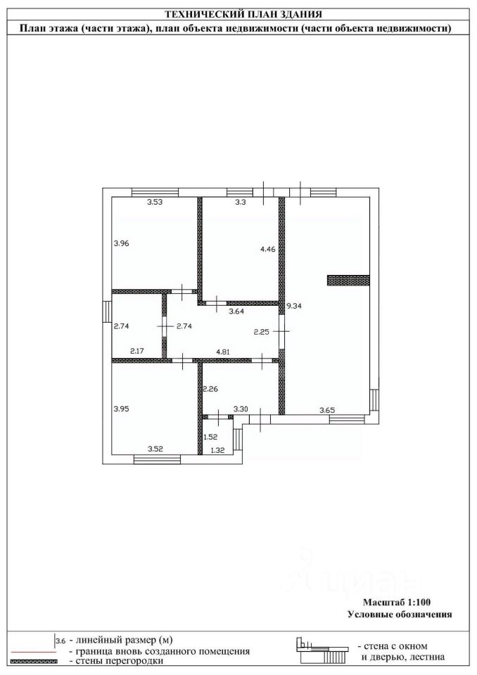
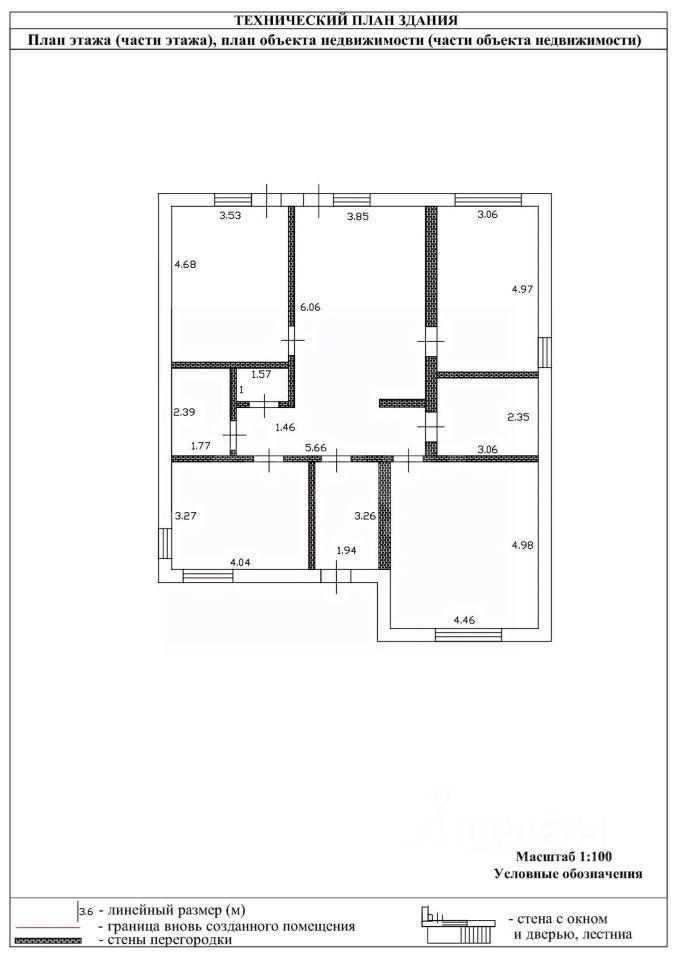
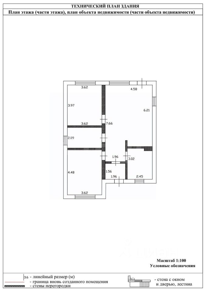
Современный одноэтажный дом в Репном пространство, где сочетаются комфорт, тишина и ощущение загородной жизни без компромиссовПодходит под СЕМЕЙНУЮ ИПОТЕКУ Репное, ул. РябиноваяДом 2026 года постройки расположен на участке 10 соток в спокойной и перспективной локации рядом с городом. Идеальный вариант для семьи, которая хочет больше пространства, свой участок и уровень жизни, который невозможно получить в квартиреПлощадь дома — 137 кв.м Продуманная планировка включает: — просторную кухню-гостиную 27 кв.м — 3 полноценные спальни — комфортные зоны хранения — гаражДом сдаётся в отделке white box это возможность реализовать интерьер именно под свой стиль, не переплачивая за чужие решения газ подключён автономная котельная центральная канализация водопровод ленточный фундамент облицовочный кирпич кровля металлочерепицаОдноэтажный формат особенно ценят семьи с детьми максимум удобства и комфорта в повседневной жизниБольшой участок позволяет организовать: — террасу — зону отдыха — барбекю — баню — бассейн — ландшафтный дизайнДом подходит под семейную ипотеку — отличная возможность приобрести современный загородный дом на выгодных условиях.Это не просто покупка недвижимости. Это переход в другой уровень жизни — с тишиной, своим пространством и ощущением дома, куда действительно хочется возвращаться
137 м2
1 этаж
- Показать контакты
- Добавить в избранное
137 м2
1 этаж
9 700 000
70 803 /м2
