Дом, с. Стрелецкое, 20 Показать на карте
Стрелецкое
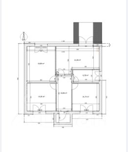
ВНИМАНИЕ!!!!!!Продается новый дом!!!Предлагаем к продаже современный дом, построенный с использованием качественных материалов и инженерных решений. Основные характеристики:- Материалы: - Стены: Аэробел 500 - Межкомнатные перегородки: Аэробел D100 - Фундамент: Орбет 450 - Пол: Монолитная плита на весь дом - Цоколь: Кирпич - Кровля: Мягкая кровля - Окна: KBE Все материалы для отопления уже закуплены (теплый пол, радиаторы, трубы), требуется только котел. - Электричество разведено и подключено к точке на столбе, также заведено внутрь дома. - Вода проведена. Инфраструктура: Стрелецкое 73/1 - это активно развивающийся пригородный жилой массив с удобным выездом и близостью к Белгороду. При въезде есть магазины, пункты выдачи, аптеки и т.д. Дом строился для себя, с вниманием к каждой детали и качеству выполнения работ. Не упустите возможность приобрести качественный и уютный дом, для комфортного проживания! Звоните для получения дополнительной информации и записи на просмотр. Код пользователя: 161827Номер в базе: 10670032
147 м2
1 этаж
- Показать контакты
- Добавить в избранное
147 м2
1 этаж
7 800 000
53 061 /м2
