Дом, Дружбы Показать на карте
Федосеевка
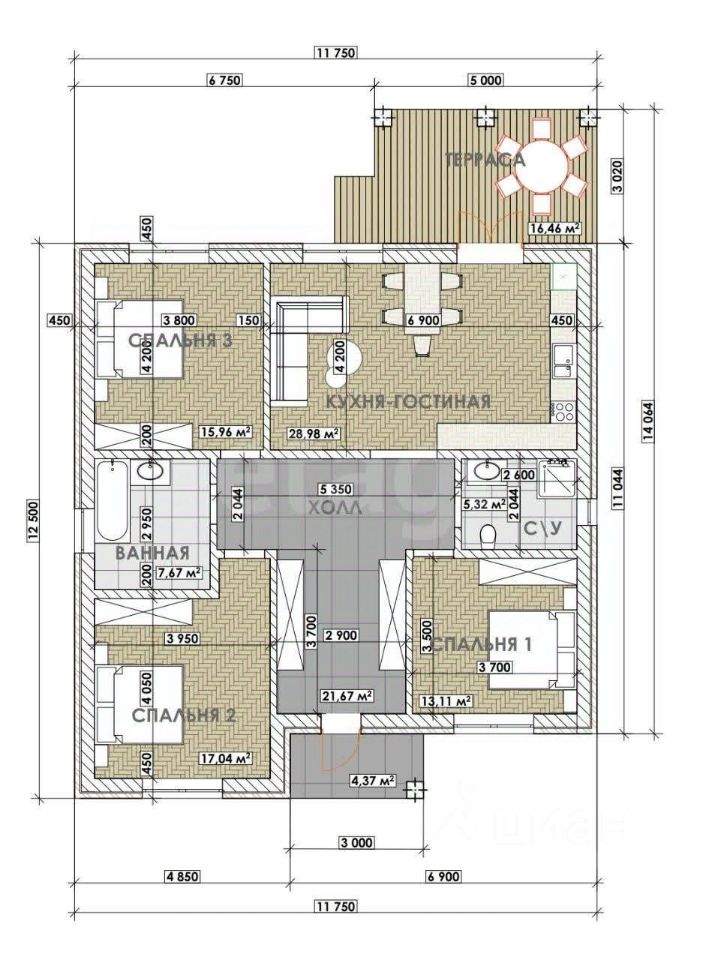
Отличный вариант под семейную ипотеку 6% от компании ''Этажи'' Современный и комфортный дом в с .Федосеевка:Дом на стадии строительства - Год постройки: 2026, значит, жилье новое и соответствует современным стандартам качества строительства.- Материал стен: Газоблок + облицовочный кирпич обеспечивают хорошую теплоизоляцию и долговечность конструкции.- Утепление минеральной ватой и мягкая черепица делают проживание комфортным круглый год.- Ремонт пред чистовой даёт простор для творчества будущих владельцев. Удобства внутри:- Система теплого пола и индивидуальные радиаторы позволяют регулировать температуру каждой комнаты отдельно.- Общая площадь 103,5 квадратных метров включает три комнаты, кухню и гостиную и совмещённый санузел. Земельный участок:- Площадь участка 15 соток, достаточно места для сада, огорода или зоны отдыха.- Подведены все необходимые коммуникации: свет, вода, газ, канализация. Выгода покупки:- Возможность оформления семейной ипотеки с низкой процентной ставкой в 6%.- Юридическое сопровождение сделки обеспечит безопасность приобретения недвижимости.Таким образом, данное предложение представляет собой отличный выбор для семьи, стремящейся приобрести собственный дом с удобствами и комфортом. Если вас заинтересовал этот объект, рекомендую обратиться непосредственно к продавцу для осмотра и консультации по условиям ипотеки. Код пользователя: 198827Номер в базе: 12462987
103 м2
1 этаж
- Показать контакты
- Добавить в избранное
103 м2
1 этаж
8 500 000
82 126 /м2
