Дом, Покровская Показать на карте
Стрелецкое
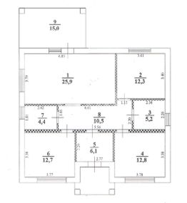
Продаётся новый просторный жилой дом, расположенный в тихом и спокойном месте с удобной транспортной доступностью благодаря близости остановки общественного транспорта.- Фундамент: монолитно-ленточный, обеспечивающий прочность и долговечность здания.- Цоколь: выполнен из прочных полнотелых бетонных блоков.- Стены: керамзитные блоки, утепленные минеральной ватой и облицованные качественным облицовочным кирпичом.- Крыша: надёжная кровля, покрытая современной металлочерепицей.- Потолок: выполнено качественное минеральное утепление механическим способом.- Окна: оснащены энергоэффективными трёхкамерными стеклопакетами.Планировка включает:- Просторный холл для комфортного приема гостей и организации пространства.- Три уютные спальни, каждая из которых может стать идеальным местом отдыха и личного пространства.- Функциональная кухня-гостиная, объединённая зона для приготовления пищи и приятного семейного времяпровождения.- Два современных санузла с качественной плиткой.- Удобная терраса, идеально подходящая для утреннего кофе или вечерних посиделок.Дом представлен с внутренней отделкой под чистовую, что позволит вам воплотить любые дизайнерские идеи и создать интерьер своей мечты. Санузлы отделаны красивой и долговечной плиткой.Приглашаю лично убедиться в отличном состоянии и качестве строительства дома. Организую удобный показ, чтобы вы могли внимательно осмотреть расположение, оценить преимущества жилья и задать все интересующие вопросы относительно условий покупки. Позвоните по указанному телефону, договоримся о комфортном времени просмотра. Готов оперативно организовать встречу и показать вам всё лучшее.
117 м2
1 этаж
Кирпич
- Показать контакты
- Добавить в избранное
117 м2
1 этаж
Кирпич
7 600 000
64 957 /м2
