Дом, Коллективная, 37 Показать на карте
Стрелецкое
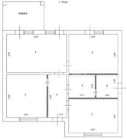
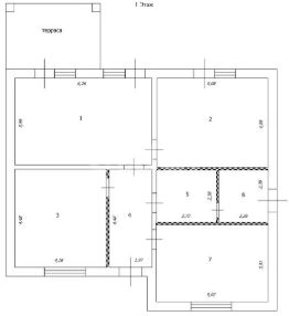
Код объекта: 1641274.Продаётся уютный и светлый дом в селе Стрелецкое Белгородского района, по адресу: Коллективная улица, 37. Это идеальное место для комфортного проживания, где вас ждут спокойствие и уют.Дом построен в 2017 году из газосиликатных блоков, что обеспечивает отличную тепло- и звукоизоляцию. Общая площадь дома составляет 89,1 кв. м, из которых 50,6 кв. м — жилая площадь. Три комнаты с площадями 15,5 кв. м, 15,7 кв. м и 19,4 кв. м позволяют организовать пространство по своему вкусу. Кухня площадью 14 кв. м переходящая в гостиную и благоустроенная застекленная веранда около 50кв. м. с мангальной зоной станет местом для семейных ужинов и дружеских посиделок.На участке площадью 15 соток есть гараж на два автомобиля и новый бассейн можно приобрести за отдельную плату. Подъезд к участку асфальтированный. Дорожки выложены тротуарной плиткой. На участке проведены все необходимые коммуникации: электричество, водоснабжение, газ и централизованная канализация. На территории имеется шикарный цветник, сад, виноградник. Дом находится всего в 13 км от города, что обеспечивает удобный доступ ко всем необходимым инфраструктурным объектам. Рядом есть всё для комфортной жизни: школы, детские сады, магазины и медицинские учреждения.Ремонт в доме выполнен в евростиле, что позволяет сразу заселиться и наслаждаться новым жильём без дополнительных вложений.Не упустите возможность стать владельцем этого прекрасного дома! Позвоните нам прямо сейчас, чтобы узнать больше и договориться о просмотре.Мы гарантируем безопасную сделку и юридическую поддержку нашим Клиентам. Поможем одобрить ипотеку с сниженной ставкой.
130 м2
1 этаж
- Показать контакты
- Добавить в избранное
130 м2
1 этаж
10 450 000
80 385 /м2
