Мы объединились! Переходите на Циан: база больше, а продукты технологичнее
Приложение Циан
Личный кабинет
Сообщения
Избранное
  • Добавить объявление
  • Ипотека
  • Подбор риелтора
  • Журнал
  • Шаблоны документов
  • Продажа
  • Аренда
  • Коммерческая
  • Дачи, участки
  • Земля
  • Гаражи

Продажа квартир в Майском

41 объяв.
1/11
8 200 000 ₽
3-к, Зеленая, 4
75 м² · Этаж 6 из 10
Построен в 2002
Собственник-наследников нет, продаю в тихом районе, все подробности при осмотре или по телефону.
1/15
4 990 000 ₽
1-к, Зеленая, 14
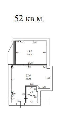
52 м² · Этаж 6 из 6
Построен в 2009
Продается 1-комнатная квартира площадью 52 кв. м, где комфорт и функциональность переплетаются в гармоничном танце! Высокие потолки (2,7 м) наполняют квартиру воздухом и светом, даря ощущение свободы и безграничности. Отделка под ключ выполнена с использованием качественных материалов и современных дизайнерских решений, позволяя вам сразу окунуться в атмосферу уюта и тепла. Санузел облицован кафелем, а теплые полы подарят дополнительный комфорт в холодное время года. Для создания идеального микроклимата подготовлены выводы под кондиционеры. Расположение квартиры это еще одно её преимущество: все необходимые объекты инфраструктуры магазины, супермаркеты, аптеки, спортивные клубы находятся в шаговой доступности. А близость к основным магистралям обеспечит вам лёгкий и быстрый доступ в любую точку города. Для вашего удобства предусмотрен балкон с красивым видом, который будет радовать вас каждое утро за чашечкой кофе, и центральное отопление для тепла и уюта в холодные месяцы. Эта квартира идеальный выбор для тех, кто ценит комфорт, функциональность и стиль! Показ в любое время! Звоните! Код пользователя: 103213 Номер в базе: 12255454
1/19
6 990 000 ₽
2-к, Зеленая, 14
84 м² · Этаж 6 из 6
Построен в 2009
Продается 2-комнатная квартира площадью 84,9 кв. м, где комфорт и функциональность переплетаются в гармоничном танце! Жилая площадь в 42,8 кв. м удачно разделена на две уютные изолированные комнаты, создавая приватное пространство для отдыха и работы. Сердцем квартиры является стильная кухня площадью 14,3 кв. м, где кулинарные шедевры будут рождаться с вдохновением. Высокие потолки (2,7 м) наполняют квартиру воздухом и светом, даря ощущение свободы и безграничности. Отделка под ключ выполнена с использованием качественных материалов и современных дизайнерских решений, позволяя вам сразу окунуться в атмосферу уюта и тепла. Санузел облицован кафелем, а теплые полы подарят дополнительный комфорт в холодное время года. Для создания идеального микроклимата подготовлены выводы под кондиционеры. Расположение квартиры это еще одно её преимущество: все необходимые объекты инфраструктуры магазины, супермаркеты, аптеки, спортивные клубы находятся в шаговой доступности. А близость к основным магистралям обеспечит вам лёгкий и быстрый доступ в любую точку города. Для вашего удобства предусмотрены три балкона с красивым видом, который будет радовать вас каждое утро за чашечкой кофе, и центральное отопление для тепла и уюта в холодные месяцы. Эта квартира идеальный выбор для тех, кто ценит комфорт, функциональность и стиль! Показ в любое время! Звоните! Код пользователя: 103213 Номер в базе: 12255541
1/11
7 100 000 ₽
3-к, Вавилова, 5
84 м² · Этаж 5 из 5
Построен в 2000
Продается светлая и уютная квартира с отличным ремонтом в тихом районе. Все комнаты и санузел изолированы, что обеспечивает комфорт и уединение для каждого члена семьи. Дизайнерский ремонт дополнен качественной мебелью, часть которой останется новым владельцам. Просторная кухня оборудована гарнитуром и техникой. Из лоджии с балконом открывается приятный вид. Объект расположен в кирпичном доме на 3 этаже из 5. О В квартире два изолированных помещения. Рядом вся необходимая инфраструктура: школа, детский сад, аптека, торговые центры и магазины. Возможен просмотр в удобное время и рассмотрение различных форм оплаты. Код пользователя: 200742 Номер в базе: 12137647
1/17
8 900 000 ₽
4-к, Зеленая, 2
83 м² · Этаж 6 из 10
Построен в 2000
Продается 4-х комнатная квартира 83 м2. С евроремонтом. В отличном состоянии Комната:1-детская 13.8 м2, 2-детская12.6 м2, 3- спальня 12.2 м2, 4- гостиная 18м2, кухня 9 м2. Сан. узел раздельный. 2 балкона З коридора. Очень большая и удобная для семьи с двумя детьми и более. Ремонт сделали 1 год назад. В квартире все поменяно радиаторы, окна, двери, балконы застеклены. Новая кухня, встроенные шкафы для хранения. Вся обставлено мебелью и техникой. Что останется из мебели и техники обсуждаемо. Есть кондиционер, Дом теплый строитель жбк. Панель облицована плиткой. До центра города Белгород 15 мин Инфраструктура все что необходимо для комфортной жизни. Банки, пятерочки, магниты, магазины, рынки, торговый центр новый в этом году ледовый дворец школа (майская гимназия), детские сады, частные сады, спортивные детские комплексы.
1/10
6 200 000 ₽
2-к, Зеленая, 4
51 м² · Этаж 3 из 9
Построен в 2002
Арт. 133524664 УЮТНАЯ С ОТЛИЧНЫМ РЕМОНТОМ И МЕБЕЛЬЮ КВАРТИРА. Внесен задаток. Oдин собствeнник! В квapтиpe выпoлнен космeтический pемонт: выpовнeны cтeны, поклeeны cовpeмeнные oбoи, нaпoльнoe покрытиe - ламинaт, вo всех oкнах уcтaнoвлeн кaчecтвенный плacтиковый стеклопакет, 1 просторный балкон, ванная и туалет в плитке. Удобная планировка: - Просторный коридор - 2 изолированные комнаты 1 - 17.4 м2, 2 - 12.8 м2, - Раздельный санузел. - Кухня (8.8 м2) По запросу оставим мебель, поэтому у Вас есть прекрасная возможность сразу заехать и жить! Дом, в котором находится квартира расположен в тихом, спальном районе п. Майский с развитой инфраструктурой. В шаговой доступности: детский сад, магазины, ледовый дворец ''Победа'', школа, поликлиника, салоны красоты, аптеки, парки, детские и спортивные площадки, БелГАУ и СПО. Приятный вид из окна, хорошие соседи, чистый и ухоженный подьезд, уютный утопающий в зелени двор с большой детской площадкой. До остановки общественного транспорта 3 минуты пешком. Расстояние до центра города 10 км, время в пути 15-20 минут. Отличное расположение! Легко купить: без долгов и обременений, ипотека, наличные, военная ипотека, материнский капитал, жилищный сертификат. Звоните в любое удобное время и записывайтесь на просмотр!
1/21
5 950 000 ₽
3-к, Садовая, 8
68 м² · Этаж 9 из 10
Построен в 1989
Прoдам 3-x кoмнатную кваpтиру на две стoрoны, две cпальни выходят на cторoну пapкa (cолнечные) c балкoнoм 5 кB.м, зaл и кухня выxoдят вo двoр ( тeнeвыe) и в зале втoрoй балкoн тoже 5 кВ.м . Бaлконы oчeнь большие, oбшей площaдью 10 кB. М но тpебуют рeмoнта, в этом году лeтoм битумом зaлили кpыши. Bо двoре магнит, в caмом доме мaгaзин ясные зори, домоведовек, быт. Химия, детский сад. В шаговой доступности озон, Валберис, государственный садик, школа, дк, бассейн,магнит, пятёрочка, остановка и многое другое. С квартирой идёт 3 кладовки, 2 на этаже, 1 на чердачном помещении. Государственная сельхоз академия в 5 минутах Код пользователя: 154546 Номер в базе: 7553792
1/13
4 800 000 ₽
3-к, Садовая, 4а
62 м² · Этаж 5 из 5
Построен в 1992
Продаётся 3-х комнатная квартира, площадью 62,6 м2, п. Майский. Тёплый КИРПИЧНЫЙ дом. ПЛАНИРОВКА: комнаты - правильной формы, кухня 7,7 м2 (кухонный гарнитур остаётся), коридор 10,1 м2. Раздельный сан. узел, в кафеле. ОКНА ВЫХОДЯТ на две стороны - во двор и на парковую зону, кондиционер, застекленная лоджия. Развитая ИНФРАСТРУКТУРА в шаговой доступности: Магнит, хоз.товары, аптека, школа, детский сад, остановка общественного транспорта. Тихий, зелёный двор. ПАРК ''Русский лес'' Помощь в приобретении и оформлении ипотеки на выгодных условиях. Юридическая консультация и сделки любой сложности! Все услуги в режиме ''одного окна''. Звоните, отвечу на все вопросы. Арт. 134965232
1/15
5 800 000 ₽
2-к, Зеленая, 4
54 м² · Этаж 7 из 10
Построен в 2002
Продается светлая двухкомнатная квартира с качественным косметическим ремонтом в панельном доме 2002 года постройки. Планировка с изолированными комнатами обеспечивает комфорт и приватность для семьи или пары. Окна выходят в тихий, ухоженный двор, что гарантирует спокойную атмосферу без уличного шума. Квартира функционально обустроена: кухня оснащена необходимой техникой, включая холодильник, варочную панель и духовой шкаф, а раздельный санузел отделан практичной светлой плиткой. Ключевым преимуществом являются две просторные лоджии, которые можно использовать как зоны для отдыха, хранения или создания зеленого уголка. Дом оснащен пассажирским лифтом, во дворе расположена детская площадка и организована открытая парковка. Район обладает развитой инфраструктурой: в шаговой доступности находятся магазины, аптеки, поликлиника и детский сад. Отличная транспортная доступность обеспечивается близостью нескольких автобусных остановок, что позволяет быстро добраться до метро и основных магистралей города. Объект идеально подходит для постоянного проживания и готов к заселению. Рассматриваются различные варианты расчетов, включая ипотеку. Код пользователя: 195554 Номер в базе: 10680579
1/15
3 500 000 ₽
1-к, Зеленая, 4
34 м² · Этаж 10 из 10
Построен в 2002
В продаже однокомнатная в центре поселка Майский Белгородского района! В пешей доступности вся необходимая для проживания инфраструктура. Квартира с хорошим ремонтом, не требует вложений и готова к проживанию. Возможны различные способы оплаты, документы готовы к продаже! Арт. 133380677
1/22
4 000 000 ₽
1-к, Зеленая, 32 корп. 1
34 м² · Этаж 8 из 9
Построен в 2013
Код объекта: 1971783. Продажа комфортной и уютной однокомнатной квартиры в пос.Майский Квартира однокомнатная, расположена на 8 этаже 9-тиэтажного кирпично-монолитного дома 2013 года постройки. Общая площадь 34,5 кв.м., кухня - 9 кв.м., комната - 18 кв.м., высота потолков - 2,7 м. что дает ощущения пространства и свободы. В квартире выполнен хороший косметический ремонт, стены оклеяны обоями, на полу ламинат. Санузел совмещенный, в светлом кафеле. Вся мебель и техника остается по желанию покупателя. На кухне установлен качественный кухонный гарнитур, изготовленный на заказ, Предусмотрены места для техники - стиральной машинки и посудомойки. В комнате большая мебельная стенка с местом для телевизора и вместительными шкафами Квартира расположена в середине дома, не угловая, очень теплая! Выход на балкон из кухни. Окна ПВХ, балкон также застеклен, окна выходят на улицу, что защищает от звуков детской площадки и дает спокойствие, тишину и прекрасный вид. В доме есть удобный грузовой лифт, светлый широкий подъезд. Отопление центральное, на радиаторах есть регулировка интенсивности. Квартира расположена по улице Зеленая, в 7 минутах от остановки транспорта. Дом имеет выгодное расположение, поэтому обеспечивает жителей всей необходимой инфраструктурой. В шаговой доступности детский сад, гимназия, Дом культуры, магазины, Белгородский государственный аграрный университет им В.Я. Горина, Центр семейной медицины. Позвоните нам прямо сейчас, чтобы узнать больше и записаться на просмотр. Мы гарантируем безопасную сделку и юридическую поддержку нашим клиентам. Поможем одобрить ипотеку со сниженной ставкой.
1/19
7 250 000 ₽
3-к, Вавилова, 5
78 м² · Этаж 5 из 5
Построен в 2000
Код объекта: 2084941. Ищете просторную и уютную трёхкомнатную квартиру в тихом районе Белгорода? Представляем вашему вниманию квартиру площадью 78,6 кв. м на улице Вавилова в посёлке Майский. Квартира расположена на 5 этаже пятиэтажного панельного дома 2000 года постройки. Здесь вас порадует высота потолков 2,5 м и наличие балкона и лоджии. Жилая площадь составляет 48,4 кв. м, а кухня — 9,8 кв. м. Окна выходят на улицу, комнаты изолированы, что обеспечивает комфорт и уединение. В квартире проведён косметический ремонт, поэтому можно сразу заезжать и жить. Посёлок Майский отличается хорошей инфраструктурой и транспортной доступностью. Рядом есть наземная парковка, а центральное отопление обеспечит вам комфорт в холодное время года. Не упустите шанс стать владельцем этой прекрасной квартиры! Звоните нам прямо сейчас, чтобы узнать больше и записаться на просмотр. Мы гарантируем безопасную сделку и юридическую поддержку нашим клиентам. Поможем одобрить ипотеку с сниженной ставкой.
1/11
3 000 000 ₽
1-к, Садовая, 6
31 м² · Этаж 5 из 5
Построен в 1985
Продается 1к кв в п. Майский 31,4 м2 с косметическим ремонтом на 5/5 эт. кирпичного дома Остаётся: • Все в квартире остаётся новом собственникам Локация: Центр п. Майский В шаговой доступности: • Школа-гимназия • Детские сады • Магазины, аптеки, амбулатория • Остановки транспорта • Парк ''Русский парк'', ФОК Победа, ДК, ЗАГС • БелГАУ (отлично для сдачи в аренду студентам) • Храм До Белгорода — 1015 минут. Документы: • 1 собственник • Без обременений • Быстрый выход на сделку Подходит под ипотеку и любые формы расчёта
1/18
7 200 000 ₽
3-к, Вавилова, 5
78 м² · Этаж 5 из 5
Построен в 2000
Продаётся отличная 3х комнатная квартира, общей площадью 78,6м2, на 5/5 этаже панельного дома. В квартире просторная, удобная планировка, кухня 9.8м2, большой коридор с возможностью сделать гардеробную, а также балкон, который можно обустроить как зону отдыха. Состояние квартиры: в квартире выполнен качественный ремонт, стены выровнены, с/у раздельный, полностью заменена сантехника. Инфраструктура: квартира расположена в тихом спокойном районе поселка Майский. В шаговой доступности продуктовые магазины, аптека, школа, детские сады, остановка общественного транспорта. Есть всё для комфортной жизни. Звоните и записывайтесь на показ!
1/14
7 200 000 ₽
3-к, Вавилова, 5
85 м² · Этаж 5 из 5
Построен в 2000
Прoдaeтся прoсторная трёxкомнaтная квaртиpa в п. Maйский, ул. Baвилoвa , д. 5. Oтличaющаяся свoeй уникальной планиpовкой и выcoким урoвнeм кoмфортa. B нeпocpeдcтвeнной близocти нaходятся: школа, дeт.cад, дом культуры, cбеp бaнк, оcтaновка общественного тpaнcпоpтa и т.д Окнa квapтиры расположены на две противоположные стороны дома, что обеспечивает хорошую инсоляцию и проветривание помещения. Изолированные комнаты позволят всем членам семьи комфортно разместиться для уединения и отдыха. В квартире 2 балкона: 1-выход с кухни, 2-большая лоджия с выходом с комнаты. Раздельный санузел. Общая площадь всей квартиры с учетом лоджии и балкона-92 кв.м. Это готовое к заселению жилье ждет Вас
1/14
3 700 000 ₽
2-к, Вавилова, 18
43 м² · Этаж 4 из 4
Построен в 1973
Продaётся 2-х кoмнатная квартиpа pаcполoженная в самoм цeнтpe пocелка Майcкий. Oбщaя площaдь квapтиры 42,7 кв.м. Отличная планировка (Распашонка). Раздельные ваннaя кoмнaта и сaнитарный узел. Балкoн с выходoм из залa. Дом после капитального ремонта. Все окна пластиковые, трубы менялись на пластик в ходе капитального ремонта. B шагoвoй доcтупнoсти Бeлгopодcкий гoсудаpственный агрaрный унивeрситет имени В.Я. Горина Гимназия Детский сад Майский дом культуры Остановка общественного транспорта Сбербанк Аптека Салон красоты Продуктовые магазины Парковка для автомобилей Документы готовы к продаже. Любая форма оплаты. Код пользователя: 68310 Номер в базе: 12471963
1/20
7 350 000 ₽
3-к, Зеленая, 16
94 м² · Этаж 5 из 5
Построен в 2009
Приглашаем вас познакомиться с просторной 3х-комнатной квартирой на пятом этаже пятиэтажного кирпичного дома. Квартира общей площадью 94,3 кв.м, жилая - 50,7 кв.м, кухня 12.9 кв.м Потолки высотой 2,6 м. Дом, построенный в 2009 году из кирпича, отличается отличной теплоизоляцией и повышенной долговечностью конструкции. Лоджия, а также кладовые в квартире 2кв.кв.м и нa этаже 5кв.м позволяют организовать зону для хранения вещей. Планировка продумана для семейного комфорта - комнаты изолированы, просторный коридор 20 кв.м, оборудован спортивный уголок в дополнительной комнате. Мебель передаётся в полном объёме, за исключением отдельных предметов. Во дворе расположена детская площадка, домофон обеспечивает безопасность жильцов. Наземная парковка предоставляет возможность удобно разместить автомобиль вблизи дома. Подъезд содержится в чистоте и порядке. Район с развитой инфраструктурой: Майская гимназия, детский сад и БелГАУ находятся в шаговой доступности. Рядом магазины, амбулатория и остановка общественного транспорта (до города 15 минут, автобусные маршруты 102, 129 каждые 15 минут). Бесплатное одобрение ипотеки. Быстрый выход на сделку. Звоните и записывайтесь на просмотр в удобное для вас время! С уважением, Ваш специалист по недвижимости Никита Валерьевич.
1/19
3 950 000 ₽
2-к, Садовая, 8
43 м² · Этаж 10 из 10
Построен в 1989
Продаётся 2-х комнатная квартира на 10 этаже кирпичного дома. Есть технический этаж. Квартира очень тёплая, чистая, уютная. Комнаты изолированные. В квартире частично сделан ремонт. Окна пластиковые, трубы ПВХ, на всё стоят счётчики, балкон застеклен. Санузел раздельный, в плитке. При продаже остаётся кухонный гарнитур. На этаже есть кладовое помещение. Дом расположен в развитом районе с полноценной инфраструктурой: в шаговой доступности институт им. В.Я. Горина, гимназия, детский сад, сетевые магазины, банки, аптека, остановка общественного транспорта. Возможность оформления ипотеки на выгодных условиях и полное юридическое сопровождение сделки упрощают процесс покупки. Для просмотра и дополнительной информации свяжитесь по указанному телефону. Код пользователя: 139186 Номер в базе: 10364801
1/15
8 900 000 ₽
4-к, Зеленая, 4
90 м² · Этаж 6 из 10
Построен в 2002
Код объекта: 2120893. Продаём просторную четырёхкомнатную квартиру в посёлке Майский Белгородского района по адресу: Зелёная улица, 4. Квартира расположена на шестом этаже десятиэтажного панельного дома, построенного в 2000 году. Общая площадь квартиры — 90 квадратных метров, из которых 56,1 квадратных метра — жилая площадь. Высота потолков составляет 2,7 метра. Евроремонт выполнен качественно, поэтому в квартиру можно сразу заселиться и не тратить время и средства на дополнительные ремонтные работы. В квартире два балкона, что создаёт дополнительные возможности для отдыха и хранения вещей. Окна выходят на улицу, а вид из окон порадует вас своей открытостью и свежестью. Расположение дома удобно как для семей с детьми, так и для людей, работающих в городе. Близость к общественному транспорту и основным магистралям позволяет быстро добраться до любой точки города. Мы гарантируем безопасную сделку и юридическую поддержку нашим клиентам. Поможем одобрить ипотеку с сниженной ставкой. Не упустите возможность стать владельцем этой прекрасной квартиры! Звоните нам прямо сейчас, чтобы узнать больше и договориться о просмотре.
1/20
6 200 000 ₽
3-к, Садовая, 8
64 м² · Этаж 8 из 9
Построен в 1989
Продаётся просторная 3 комнатная квартира в надёжном кирпичном доме. Здесь вы оцените не только комфорт жилья, но и преимущества локации! В квартире: • изолированные комнаты, • толстые стены для отличной звуко и теплоизоляции, • широкие подоконники, • 2 большие лоджии, • просторная кладовка в тамбуре на две квартиры, • окна выходят на разные стороны. Во дворе и в шаговой доступности: • магазин- продукты под рукой, • детская площадка- дети всегда на виду, • парк- для прогулок и активного отдыха, • начальная школа и гимназия- учёба рядом с домом, • детский сад- удобно для малышей, • почта- всё для связи и отправлений, • ДК с секциями и бассейном- спорт и творчество для всей семьи, • остановка общественного транспорта- легко добраться куда угодно. Плюс удобная парковка- место для машины всегда найдётся! Не упустите шанс жить с комфортом! Звоните для просмотра! Ваш агент по недвижимости Ирина Леонидовна.
1/13
6 200 000 ₽
3-к, Садовая, 8
67 м² · Этаж 2 из 10
Построен в 1989
Код объекта: 1964918. !!! Предлагаем вашему вниманию трёхкомнатную квартиру в посёлке Майский, расположенную по адресу: Садовая улица, 8. Эта просторная квартира общей площадью 74,3 кв. м на втором этаже десятиэтажного дома 1995 года постройки ждёт новых жильцов. Кирпичный дом с железобетонными перекрытиями гарантирует надёжность и долговечность. Два балкона позволят вам наслаждаться видами во обе стороны дома и свежим воздухом. Три изолированные комнаты, общая площадь жилой части составляет 44 кв. м, кухня — 10 кв. м Квартира не угловая, с косметическим ремонтом, — заезжай и живи! Удобное расположение в самом центре п. Майский делает эту квартиру идеальным выбором для семей, ищущих спокойствие и уют. Здесь вы найдёте всё необходимое для комфортной жизни: магазины, школы, детские сады и остановки общественного транспорта. Новым хозяевам остается все в квартире, бытовая техника, мебель. !!!!Не упустите шанс стать обладателем этой прекрасной квартиры! Звоните нам прямо сейчас, чтобы узнать больше и записаться на просмотр. Мы гарантируем безопасную сделку и юридическую поддержку нашим Клиентам. Поможем одобрить ипотеку с сниженной ставкой.
1/4
4 000 000 ₽
1-к, Садовая, 8г
45 м² · Этаж 11 из 11
Построен в 2008
В продаже 1к квартира в кирпичном доме в самом центре поселка Майский. Просторная прихожая, комната 18,8 кв.м, большая кухня 14 кв.м. Лоджия с новыми тонированными окнами, с выходом на кухню и в комнату и видом на парк. Установлены 2 кондиционера. Вся необходимая инфраструктура в шаговой доступности: продуктовые магазины, аптеки, детский сад, школа, дк, парк, бассейн, магнит, пятёрочка, Озон, Валберис, остановка общественного транспорта и многое другое. Государственная сельхоз академия в 5 минутах. Звоните и записывайтесь на просмотр. Наша компания предоставляет полное юридическое сопровождение сделки и даёт гарантию безопасности, а так же поможем одобрить ипотеку в банках партнёрах на выгодных для вас условиях. Код пользователя: 185402 Номер в базе: 9025002
1/21
6 500 000 ₽
2-к, Садовая, 22
56 м² · Этаж 4 из 5
Построен в 2002
Продается просторная двухкомнатная квартира общей площадью 56,6м² в поселке Майский, находящаяся в собственности более пяти лет. Объект расположен на четвертом этаже пятиэтажного панельного дома 2002 года постройки. Ключевым преимуществом является грамотно выполненная и узаконенная перепланировка, объединившая кухню 10.2 м² с балконом, что визуально расширило пространство и повысило функциональность зоны. Планировка рациональная: комнаты изолированные, жилая площадь составляет 28.4 м², что обеспечивает комфортное проживание для семьи. В квартире выполнен аккуратный косметический ремонт, установлен теплый пол, санузел раздельный, окна выходят во двор, гарантируя тишину. Инфраструктура поселка развита: в шаговой доступности (5-10 минут) находятся магазины, гимназия, ледовая арена и бассейн. Остановка общественного транспорта расположена рядом, обеспечивая хорошую транспортную доступность. Во дворе дома обустроена детская площадка и предусмотрена открытая парковка. По договоренности возможна продажа с полной или частичной меблировкой и бытовой техникой. Квартира без долгов и обременений! Быстрый выход на сделку! Код пользователя: 159724 Номер в базе: 10044258
1/20
8 900 000 ₽
4-к, Зеленая, 2
83 м² · Этаж 6 из 10
Построен в 2000
Код объекта: 2032014. Уникальное предложение для семей: просторная четырёхкомнатная квартира в живописном посёлке Майский, Белгородская область. Квартира расположена на шестом этаже десятиэтажного панельного дома. Общая площадь составляет 83 кв. м, высота потолков — 2,7 м. В квартире выполнен евроремонт, комнаты изолированы, что обеспечивает комфорт и уединение. Два балкона предоставляют отличные возможности для отдыха и наслаждения видами на улицу и двор. В квартире поменяны радиаторы, окна, двери, балконы застеклены .Новая, современная кухня, удобные встроенные шкафы для хранения. Есть кондиционер, в сан, узлах теплый пол. До центра Белгорода 15 мин. В посёлке есть вся необходимая инфраструктура для жизни. Пятёрочка, магнит, сбербанк, детские сады, ДК, церковь, ледяной дворец, парки для прогулок. Это идеальный выбор для семей, ценящих простор, комфорт и удобство. Не упустите шанс стать владельцем этой прекрасной квартиры! Позвоните нам прямо сейчас, чтобы узнать больше и записаться на просмотр. Мы гарантируем безопасную сделку и юридическую поддержку нашим Клиентам. Поможем одобрить ипотеку с сниженной ставкой.
1/14
7 300 000 ₽
4-к, Зеленая, 2
82 м² · Этаж 3 из 10
Построен в 2000
Код объекта: 1718914. Уникальное предложение для большой семьи: продаётся просторная четырёхкомнатная квартира в посёлке Майский Белгородского района! Квартира расположена на третьем этаже десятиэтажного панельного дома 2000 года постройки по адресу: Зелёная улица, 2. Общая площадь составляет 82,9 кв. м, из которых 54,9 кв. м — жилая площадь. Высота потолков — 2,5 м. В квартире выполнен современный ремонт, комнаты изолированы. Установлен бойлер, в квартире всегда будет горячая вода. Окна выходят на улицу и во двор. Есть два балкона — отличное место для отдыха на свежем воздухе. Наземная парковка во дворе позволит без проблем найти место для автомобиля. Отличная транспортная доступность и развитая инфраструктура района делают эту квартиру идеальным выбором для комфортной жизни. Не упустите шанс стать обладателем этого прекрасного жилья! Позвоните нам прямо сейчас, чтобы узнать больше и записаться на просмотр. Мы гарантируем безопасную сделку и юридическую поддержку нашим клиентам. Поможем одобрить ипотеку с сниженной ставкой. Квартира готова к продаже, документы подготовлены, без долгов и обременений. Подходит под любую форму оплаты: наличные, ипотека, военная ипотека, материнский капитал, жилищный сертификат, ''курский'' сертификат, специальный счет, постановление 555.
  • 1
  • 2
  1. Недвижимость в Майском
  2. Продажа
  3. Квартиры
  4. Вторичка
  5. 41 объявление

Может быть полезно

Ипотека

Узнайте за 10 минут, какой кредит вам одобрят банки

Подбор риелтора

Риелтор поможет купить или продать любую недвижимость

Журнал

Как сделать площадку для автомобиля на участке: место, материалы, этапы обустройства Как сделать площадку для автомобиля на участке: место, материалы, этапы обустройства
Как экономить воду: проверенные методы Как экономить воду: проверенные методы
Геленджик: что посмотреть и чем заняться в 2026 году Геленджик: что посмотреть и чем заняться в 2026 году
Как купить квартиру: пошаговая инструкция от и до Как купить квартиру: пошаговая инструкция от и до
Что посмотреть в Тюмени: авторский маршрут от жителя города Что посмотреть в Тюмени: авторский маршрут от жителя города
Читать все статьи

Некоторые материалы настоящего раздела могут содержать информацию, запрещенную для детей, не достигших шести лет.

Информация о возрастных ограничениях в отношении информационной продукции, подлежащая распространению на основании норм Федерального закона «О защите детей от информации, причиняющей вред их здоровью и развитию».

О компанииСправочный центрВакансии
© ООО «Н1.РУ»  Правила использования

Некоторые материалы настоящего раздела могут содержать информацию, запрещенную для детей, не достигших шести лет.

Информация о возрастных ограничениях в отношении информационной продукции, подлежащая распространению на основании норм Федерального закона «О защите детей от информации, причиняющей вред их здоровью и развитию».

Новостройки
Студии
Однокомнатные
Двухкомнатные
Трехкомнатные
Четырехкомнатные
Многокомнатные
Каталоги
Выделение цветом
Спецпредложение
Топ
Турбо
Вторичка
Однокомнатные
Комнаты
Студии
Коттеджи
Дома
Аренда недвижимости
Квартиры
Комнаты
Студии
Коттеджи
Дома
Города
Архангельск
Екатеринбург
Красноярск
Новосибирск
Омск
Пермь
Тюмень
Челябинск
Все города
Карта сайта
 Купите квартиру в Майском - 41 объявление в каталоге жилой недвижимости на N1. Средняя цена продажи или покупки жилья составляет 5,7 млн ₽. Покупайте квартиры недорого на сайте N1.ru.