Дом, Победы Показать на карте
Никольское
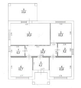
Продается дом в с. Никольское, мкр. ''Черемушки'', общей площадью 241 м2, на участке 15 соток Дом разделен на две одинаковые половины, каждая по 120 м2, и имеет два отдельных входа. Строился для себя с соблюдением всех строительных норм. Фундамент ленточный глубиной 1,2 метра с пленкой, марка бетона м200.Цоколь из красного кирпича (советского производства). Коробка из АэроБела Premium D500, ширина стен 300мм, несущие 300мм, перегородки 100мм. Плиты перекрытия. Утеплитель минераловатный 100мм, снаружи обшит фасадными панелями Docker. Крыша металлочерепица, утепление 150мм.Отопление: первый этаж теплые полы, второй биметаллические радиаторы. На обоих этажах по совмещенному с/у. Окна ПВХ с тройным стеклопакетом и хорошей фурнитурой. Отделка предчистовая: выровнены стены, чистовые полы. В ванных комнатах плитка. Электричество в доме, разведено. Газ и вода введены в дом, осталась только врезка. Водопровод центральный, септик на 4 кольца диаметром 2 м. Участок 15 сот. Ровный, с двух сторон огорожен забором. В двухстах метрах остановка общественного транспорта. Микрорайон жилой асфальтирован, газифицирован. Прямая продажа. Показы по договоренности. Рассмотрим все виды оплаты. Поможем с оформлением ипотеки под самый низкий процент.
241 м2
- Показать контакты
- Добавить в избранное
241 м2
6 500 000
26 971 /м2
